Andergrove
Sold
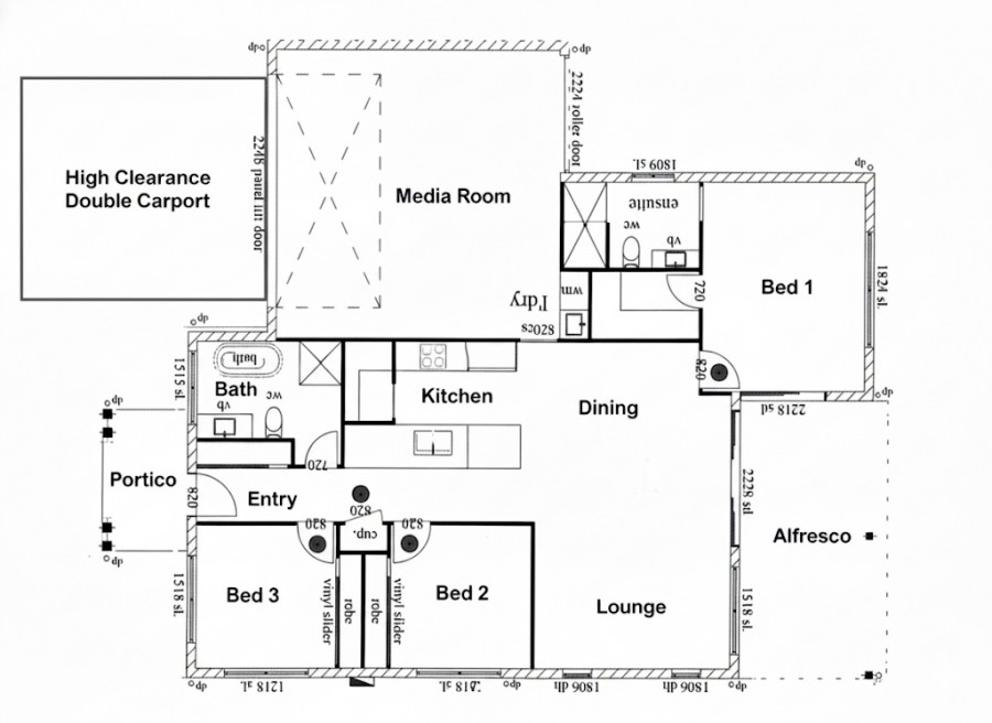
3 Chester Crescent
Modern Design & Street Appeal
* Thoughtfully designed and beautifully executed single-level contemporary home
* Striking façade with stylish contemporary landscaping
* High-clearance carport - ideal for caravan, boat, or utility vehicle
* Versatile carport area can open to extend the media room for entertaining
Spacious Living Areas
* Open-plan kitchen, dining, and family living zone
* Modern kitchen positioned at the heart of the home
* Expansive media room - large enough for lounge suites, billiard table, or family entertainment space
Bedrooms & Bathrooms
* Generous master suite with walk-in robe and ensuite
* Main bathroom with bathtub and natural light, positioned for easy guest access
* All bedrooms feature built-in robes, air conditioning, and ceiling fans
Outdoor Living & Lifestyle
* Covered alfresco area - perfect for entertaining or relaxing
* Luxury swim spa for year-round enjoyment
* Double bay powered shed ideal for storage, hobbies, or workshop space
* Fully fenced yard with low-maintenance landscaping
Additional Features
* Air conditioning throughout
* Contemporary finishes and fittings
* Excellent flow between indoor and outdoor living spaces
* Ideal for professional couples, young families, or retirees
*Solar power - 8KW system (7.92) is 18 x 440W Jinko Panels + Sungrow Inverter
Installation date September 2023 (system fully powers hot water system.
all panels are on shed roof.
in the property should carry out their own research. This property is being sold without a set price, so a price guide cannot be offered. The website may have grouped the property into a price bracket for website functionality purposes. Anyone interested in the property should verify the information independently. The information provided by the Vendor/Agent can be considered reliable but not necessarily precise. Some photos may be digitally staged. Disclaimer: The vendors and/or their agents do not provide any warranty regarding errors or omissions, if any, in these details, which they believe to be accurate at the time of compilation. Anyone interested


