Property Links
Rural View
Sold for $580,000
13 Douglas Cr
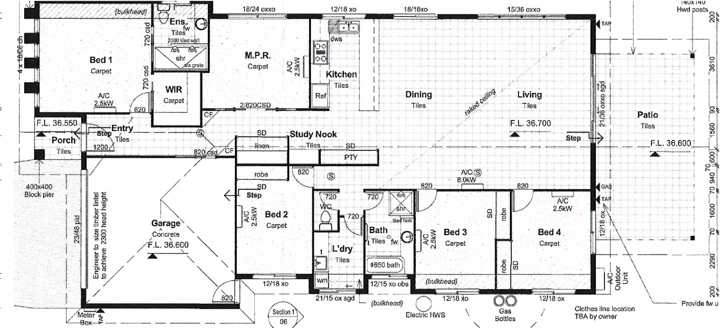
Elevated, Large 287m2 Luxury home, is situated in one of Mackay's Elite estates with exquisite views. You won't get flooded here, high and dry and elevated. This lovely home is in a wonderful area of convenience, with everything you want and need just 3 minutes drive away. Need a Doctor, Dentist, Chemist, Supermarket ,Vet, takeaway,meal at the bowls club, car wash, service station , 3 Schools and so much more.
This elegant and sophisticated home, only 6 yrs old, will suit a family or executive couple, situated among quality homes, in stunning Rural View.
No expense has been spared with 4 Large bedrooms, 3 with Built-ins, The master retreat is double size, with walk In robe and elegant en-suite.
Media room, or second living area is perfect for the family to take in a movie or can be a games or toy room for a young family complete with HDMI, aerial and speaker cables run and ready to go.
Open plan spacious, dining, family, and kitchen areas, with raked ceiling gives the added benefit of airiness, space and natural light.
Designed with large scale entertaining and dining in mind, the impressive spacious gallery Kitchen, makes it easy with quality appliances, dishwasher, stand alone gas stove, and large gourmet oven. Big Families are catered for with a the full length breakfast bar and a large double door pantry.
Entertaining extends outdoors through large sliding doors with an expansive area which is glass balustraded, perfect for large party gatherings or relax and enjoy the Sunday footy, on the outdoor TV, and take in a BBQ with permanent gas and hot and cold water supply plus drainage for an outdoor kitchen.
Entertaining has never been so easy, with the delightful outlook and added luxury of living on a elevated block. There is room for an inground pool.
Double Lock up garage with remote access, gives space for family cars, and inside access to the home.
Beautiful bathrooms with separate showers, main bathroom has a tub to relax in, featuring glass tiles and stone vanity tops, Stunning ceramic tiles throughout living areas, bathrooms and carpeted bedrooms.
There is also a study nook. High raked ceilings, fully A/C, plus ceiling fans, and walk in linen.
Landscaped gardens, 816m2 block fenced with side access. All retained and easy care.
2 Bay powered shed, with concreted driveway access, 3 Phase power to house and shed, suitable to install solar or a generator.
Minutes to everything, including, bowls club and surrounding Northern Beaches.
Join us at the open home, Saturday.
4 Bedrooms large with B/I
Master retreat en-suite WIR
Separate Media room
Open plan family, dining, kitchen.
Powered shed, 3 phase, side access
Fully A/C, security screens, high ceilings
287m2 under roof
Fenced 816m2 block
Main bathroom with separate shower and tub.
Study nook
Only 6 yrs old
Room for a pool
Large entertaining area with glass balustrade
landscaped gardens, retained
Quality home with quality fit-out
Minutes to GP super clinic, Bowls club, Northern beaches
Minutes to shops and supermarket
Open Saturday


